
Rendering of the upgraded Parks and Recreation building at 3401 E. Florence Ave.
During the April 7 Huntington Park Council meeting, residents were confused to see a presentation on the Salt Lake Park building renovation while there were no updates on the Huntington Park Regional Aquatic Center that is the subject of a corruption probe over misused funds. Both projects are on the Salt Lake Park grounds.
Public Works director Gerardo Lopez showed the renderings of the upgraded Parks and Recreation building at 3401 E. Florence Ave.
The building renovation has a cost of $5.5 million and is expected to be completed by late 2026 or early 2027. The renovation aims to provide a new green building with energy efficient amenities such as a cooler roof, glass that is thermally designed to keep heat out and green walls. However, it was reported the restroom upgrade won’t be included in the project due to the lack of funding.
During public comment period, residents criticized the council members for leaving projects incomplete.
Alternative to the Aquatics Center

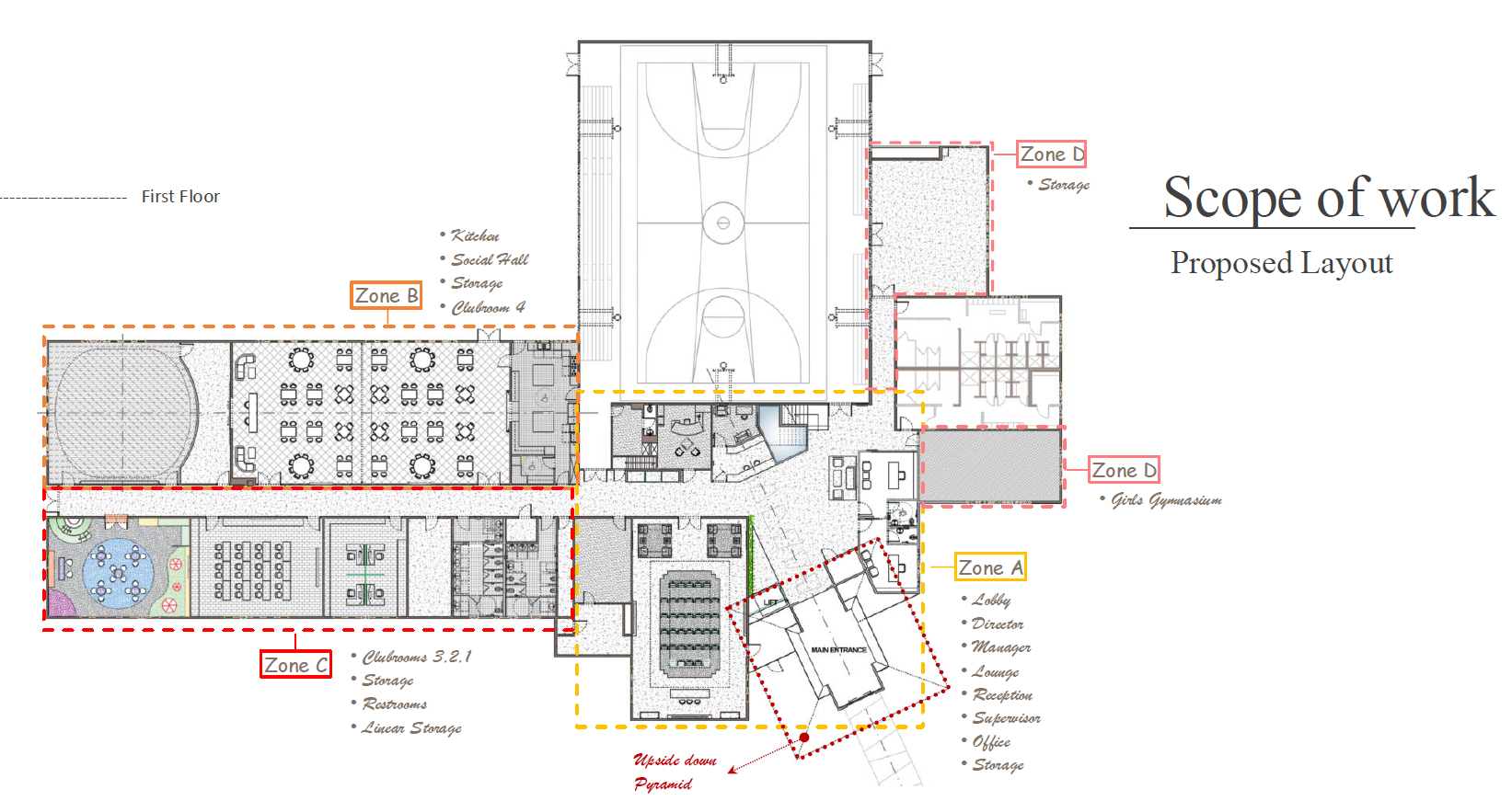
Proposed layout of the upgraded Parks and Recreation building at 3401 E. Florence Ave.
The Huntington Park Aquatic Center broke ground in 2019 and the website still says the project was to be completed in 12 to 18 months. However, six years later, the City has spent $14 million of the $24 million project and there is nothing to show for it. The Los Angeles County District Attorney is investigating the corruption probe, named “Operation Dirty Pond.”
Without providing much details during Monday’s meeting, Vice-Mayor Eduardo Martinez said the Aquatic Center project is coming to an end.
Reyes confirmed that the Huntington Park Aquatics Center, in its original state, no longer exists. However, there is still the possibility to build an outdoor recreational pool with the renovation building project.
“What I’m recommending is an outdoor recreational pool with a cost of approximately $1.5 million that becomes part of the Salt Lake Park Recreation building rehabilitation project,” he said. “If the council decides to move in that direction that’ll be part of the second phase to the capital improvement project.”
Maria Patricia, a resident of Huntington Park for 40 years, said the parks are extremely dirty, especially Salt Lake Park.
“When we ask why they don’t clean, they tell us because the soil is contaminated,” said Patricia in reference to the area where the aquatic center was supposed to be built.
As for now, that area is just a gated dirt plot.

Rendering of the upgraded Parks and Recreation building at 3401 E. Florence Ave.
Rodolfo “Rudy” Cruz, another resident, said there are employees in Huntington Park earning from $130,000 to $200,000 but don’t do anything to help the residents.
“You don’t have money to fix the park but you pay a lot to the employees,” Cruz told the council members.
Nancy Bugarin said she has requested tree trimming several times but her petition falls in deaf ears.
“They trim one tree, then they wait weeks and trim another one. Why are you limiting the work to clean the city?” she asked the councilmembers. “I came to speak here before and nobody does anything. The city is in this situation because we have useless people like you.”
Project update
Huntington Park city manager Ricardo Reyes said the Parks and Recreation building at Salt Lake Park is a structure built in the 1950s and through time it has received minimal attention.
The project was championed by Mayor Arturo Flores, who back in 2022 was a councilman and advocated for the rehabilitation of the building. With the help of former California Speaker of the Assembly Anthony Rendon, the state was able to provide $1.8 million to the project.
Additional funding came from the America Rescue Fund; the Community Development Block Grant (CDBG) program, which is a federal fund; plus City general funds, said Reyes.
Flores said when he joined the council in 2022, residents kept inquiring about the Aquatic Center but because he was the newest councilmember, he wasn’t fully caught up on the update.
“So I got the idea to advocate and push for remodeling of the Salt Lake Recreation Center, which is a building that's along Florence, the one that everybody uses as a gymnasium,” said Flores.
Reyes said once the project starts there will be a website available so residents can see the progress. He said although the restrooms are not part of this initial proposal they are still trying to identify additional funds to include the restrooms.
(0) comments
Welcome to the discussion.
Log In
Keep it Clean. Please avoid obscene, vulgar, lewd, racist or sexually-oriented language.
PLEASE TURN OFF YOUR CAPS LOCK.
Don't Threaten. Threats of harming another person will not be tolerated.
Be Truthful. Don't knowingly lie about anyone or anything.
Be Nice. No racism, sexism or any sort of -ism that is degrading to another person.
Be Proactive. Use the 'Report' link on each comment to let us know of abusive posts.
Share with Us. We'd love to hear eyewitness accounts, the history behind an article.